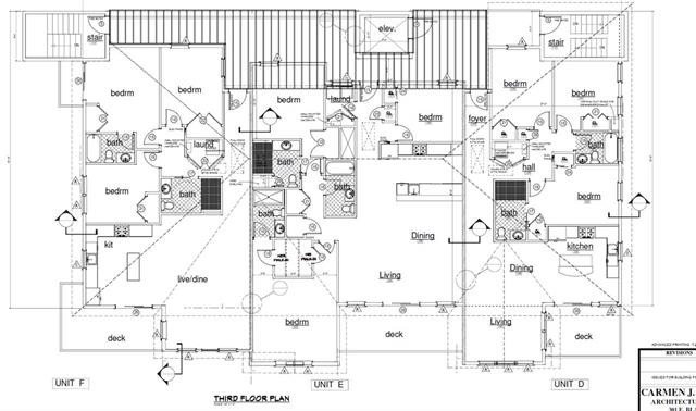
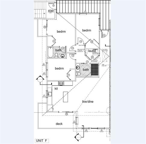
3 1 2 Front